
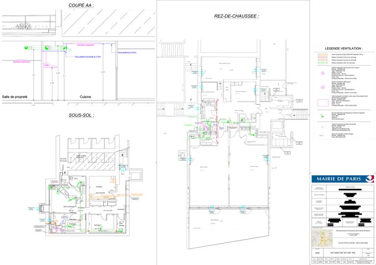
Crèche – Paris 20 – EFFICLIMAT
ETUDE DE PRIX : dimensionnement CHAUFFAGE-VENTILATION-PLOMBERIE, métrés, devis quantitatif chiffré
Vous recherchez une entreprise CVC en Île-de-France capable de piloter vos études techniques, vos plans d’exécution ou vos notes de calcul ?
ABAQ vous accompagne de la conception à la réalisation avec expertise, réactivité et précision.
Demandez dès maintenant votre étude personnalisée

Assurer un renouvellement d’air sain et continu dans les espaces.

Garantir une température confortable et adaptée en toute saison froide.

Maintenir la fraîcheur et le confort thermique en période de chaleur.

Gérer l’alimentation et l’évacuation des eaux de manière fiable.

Évacuer les fumées en cas d’incendie pour sécuriser les occupants.
Edouard BACHOUX
Gérant de ABAQ BET
« Depuis le premier jour, mon idée a toujours été simple : concevoir des projets utiles, durables et parfaitement adaptés à ceux qui les vivent. Chaque détail compte, et c’est cette exigence qui guide chacune de nos réalisations »
Basée à Émerainville, ABAQ BET est une entreprise CVC en Île-de-France spécialisée dans les études techniques en génie climatique, ventilation, chauffage, plomberie et désenfumage.
Nous accompagnons les entreprises et maîtres d’ouvrage sur l’ensemble du territoire, de la phase de conception jusqu’à la réception des travaux.
Grâce à une approche rigoureuse et un savoir-faire reconnu, notre bureau d’étude prend en charge tous types de projets, du tertiaire à l’habitat collectif, en passant par les bâtiments de santé et d’enseignement.
Chaque projet mérite une approche sur-mesure. Que ce soit pour une étude, un accompagnement complet ou simplement un premier échange, je suis à votre écoute pour comprendre vos besoins et vous proposer des solutions adaptées.
On propose une gamme complète de prestations pour accompagner vos projets techniques dans le domaine du génie climatique. Nous intervenons à chaque étape, de la conception initiale jusqu’à la livraison finale, avec une expertise reconnue sur des projets variés (tertiaire, santé, enseignement, logements, ERP…).
Nous assurons la phase de conception avec rigueur et précision, en produisant l’ensemble des documents techniques nécessaires à la préparation des travaux :
Notre bureau d’étude réalise une estimation précise des coûts grâce à :
Nous prenons en charge l’exécution technique du projet en élaborant tous les éléments nécessaires à la mise en œuvre terrain :
En complément, nous assurons un panel de services techniques spécifiques :
Nous nous engageons à fournir des prestations de qualité, fondées sur la rigueur, la transparence et la performance énergétique. Chaque projet fait l’objet d’un accompagnement personnalisé, dans le respect des délais, du budget et des exigences réglementaires.
Réactivité
Fiabilité
Transparence
Expertise technique
Écoute client
ABAQ est spécialisée dans la production de livrables techniques à forte valeur ajoutée. Nous accompagnons nos clients à chaque étape du projet, avec une approche rigoureuse, conforme aux réglementations en vigueur.
Voici un aperçu des prestations techniques que nous réalisons au quotidien :
Nous réalisons les plans détaillés de vos installations CVC, indispensables à la bonne exécution des travaux sur site. Ces plans intègrent l’ensemble des réseaux (chauffage, ventilation, climatisation, plomberie, désenfumage) et prennent en compte les contraintes architecturales et techniques du projet.
Grâce à nos outils de calculs et notre expérience terrain, nous établissons des estimations précises et documentées : dimensionnement, métrés, devis quantitatifs et consultations fournisseurs. Ce travail permet d’anticiper les coûts réels du chantier.
Nous produisons des notes de calcul complètes (aéraulique, hydraulique, thermique…), indispensables pour justifier les choix techniques, assurer la conformité réglementaire et optimiser la performance énergétique.
Nos ingénieurs réalisent les études réglementaires (RE2020, RT2012…) ainsi que les simulations thermiques dynamiques pour garantir l’efficacité énergétique des bâtiments.
Nous coordonnons l’ensemble des lots techniques afin de prévenir les conflits entre réseaux. Cette mission est essentielle dans les projets complexes pour assurer une exécution fluide et sans erreur sur chantier.
La preuve de notre expertise, en images.

ETUDE DE PRIX : dimensionnement CHAUFFAGE-VENTILATION-PLOMBERIE, métrés, devis quantitatif chiffré

Client : EFFICLIMAT (installateur CVC-PLB) Besoins client : répondre aux demandes du

Client : Atelier Richard Fard (Architectes) Besoins client : conception des installations

Nous avons le plaisir de vous annoncer la mise en ligne du nouveau site internet d’ABAQ. Entièrement repensé, ce site a été conçu afin de vous offrir une navigation plus

Notre entreprise renforce son rayonnement avec la réalisation de plusieurs projets en Polynésie française ! La confiance accordée par notre Client SANECO PF, entreprise de plomberie basée à Tahiti mais

Dans un monde où la performance énergétique, la durabilité et l’innovation technique sont au cœur des projets de construction et de rénovation, les métiers du BET (Bureau d’Études Techniques) jouent
Oui. Nous intégrons les plans d’architecte, les niveaux de dalle, les gaines techniques, ainsi que les contraintes de cloisonnement ou faux plafonds. Nos plans sont pensés pour faciliter l’exécution et limiter les conflits sur chantier.
Oui, si une maquette BIM est fournie, nous pouvons y intégrer nos réseaux CVC (en format IFC ou Revit), ou produire une couche technique dédiée. Cela permet une meilleure coordination inter-lots et une anticipation des interférences.
Absolument. Nous produisons l’ensemble des pièces techniques nécessaires au DOE : plans conformes à l’exécution, schémas de principe, fiches techniques matériel, et notes de calcul mises à jour après chantier.
Oui. Nos missions peuvent être limitées à une étude de prix, un devis quantitatif, ou des métrés détaillés à destination des entreprises de CVC ou des économistes. Nous sommes également en mesure de consulter les fournisseurs pour obtenir les prix.